Multi Units
MU290
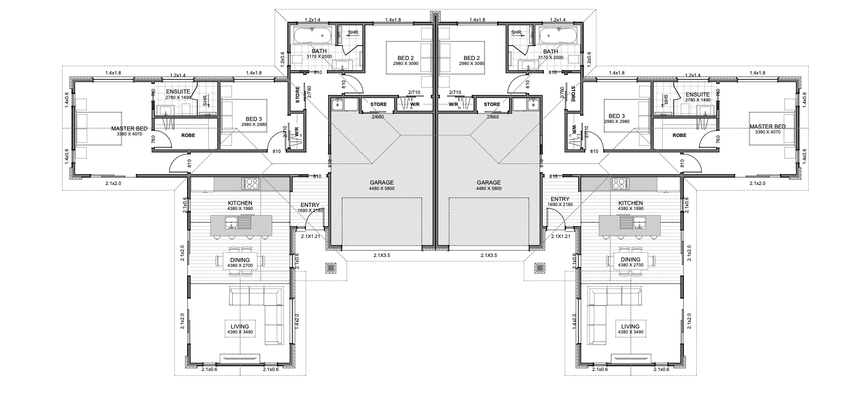
Floor Plan
Specifications
842290m²
Interested in this plan?
Get in touch with our team to discuss customisation options, pricing, and availability.
Enquire NowGet in touch with our team to discuss customisation options, pricing, and availability.
Enquire Now