Multi Units
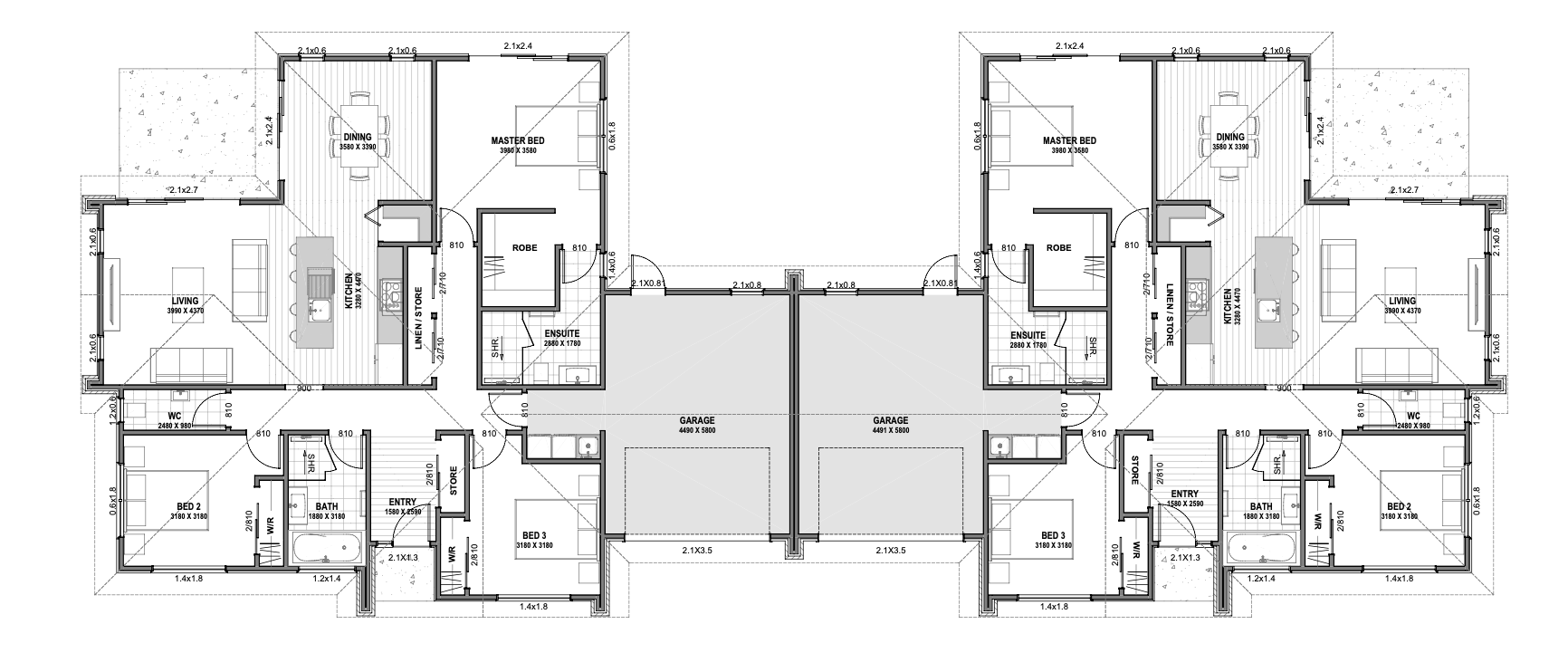
MU330
Floor Plan
Specifications
842330m²
Interested in this plan?
Get in touch with our team to discuss customisation options, pricing, and availability.
Enquire NowGet in touch with our team to discuss customisation options, pricing, and availability.
Enquire Now