Urban Residential
UR-2S225
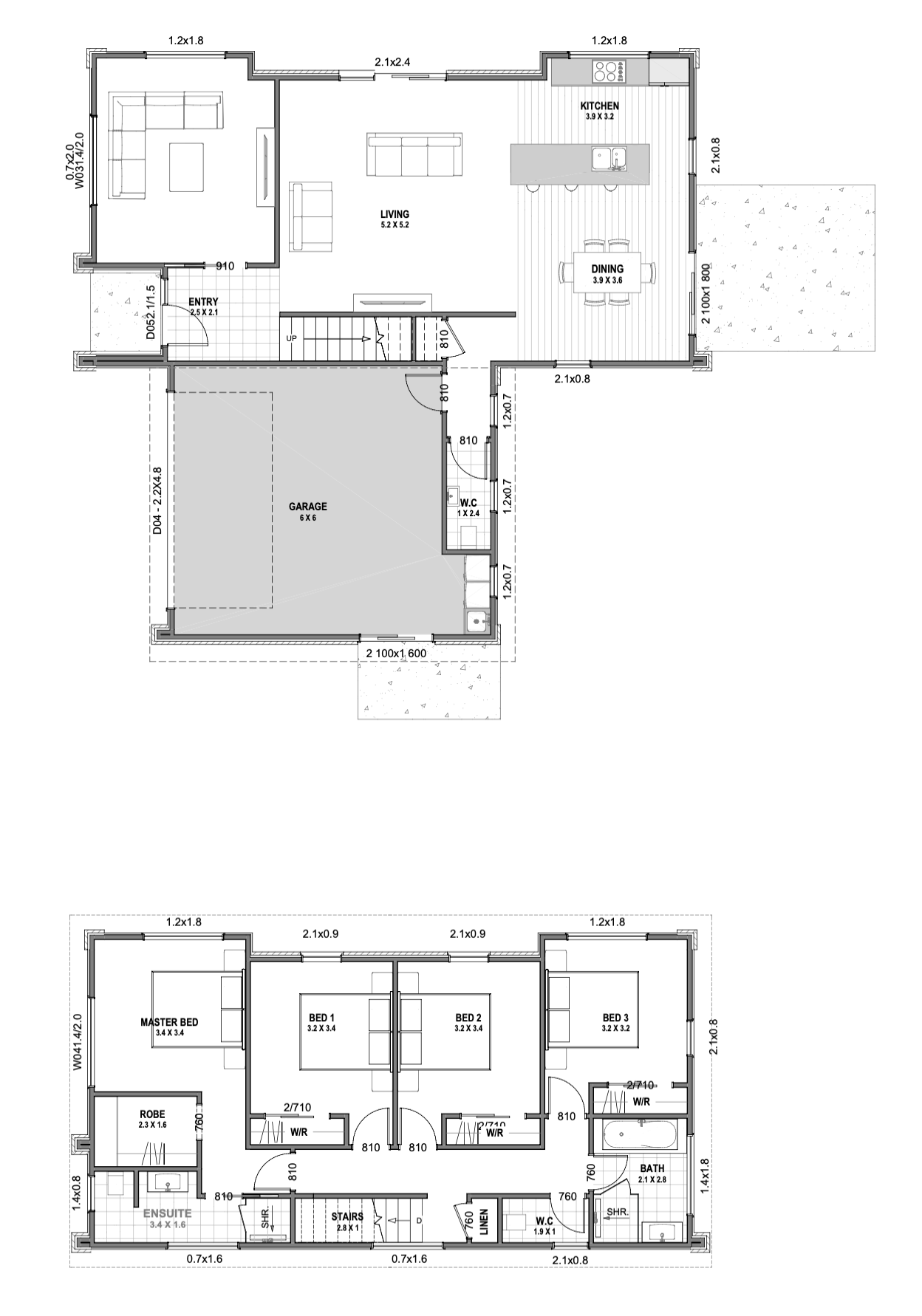
Floor Plan
Specifications
42.52225m²
Interested in this plan?
Get in touch with our team to discuss customisation options, pricing, and availability.
Enquire NowGet in touch with our team to discuss customisation options, pricing, and availability.
Enquire Now