Urban Residential
UR135
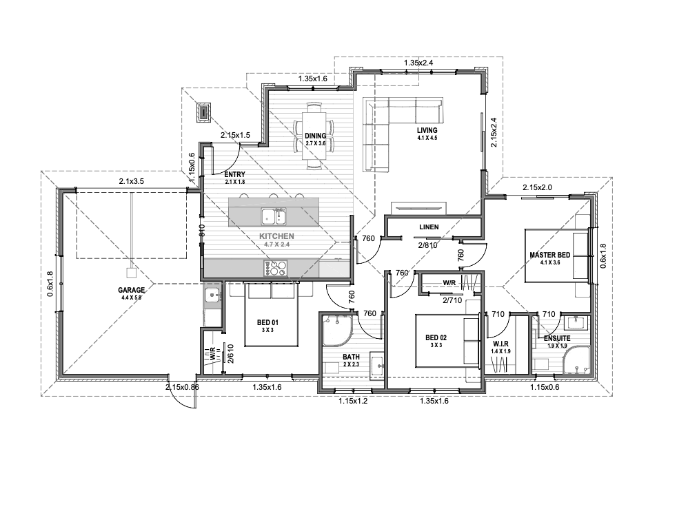
Floor Plan
Specifications
321135m²
Interested in this plan?
Get in touch with our team to discuss customisation options, pricing, and availability.
Enquire NowGet in touch with our team to discuss customisation options, pricing, and availability.
Enquire Now